中国政府网 国家文物局 山西省政府
  • 无障碍浏览
  • 切換到繁體

山西省文物局门户网站

热门搜索: 山西文物 博物馆 纪念馆 世界文化遗产

首页
  • 工作动态
    • 国家局信息

      时政要闻

      省内要闻

      省直动态

      市县信息

    • 行业动态

  • 党建工作
    • 组织概况

      党建信息

      理论学习

      党风廉政

      创先争优

  • 政务公开
    • 组织机构 机构设置 领导信息

      政府信息公开 信息公开指南 主动公开基本目录 政府信息公开年报

      政策法规 法律法规 政策文件 国际公约 政策法规解读

      通知公告 人事信息 招标公告 其他公告

      中央经济工作会议精神和《山西省政府工作报告》落实情况

      建议提案 人大建议答复 政协提案答复

      法治政府建设

  • 行政审批
    • 办事指南

      办事流程

      审批公告

      权责清单

  • 文明守望
    • 动态信息

      通知公告

      视频展播

  • 专题专栏
    • 晋地宝藏

      线上展览

      文化遗产展示工程

      行政执法

      山西文物保护成果展

    • 学习宣传宪法 贯彻落实宪法

      聚焦两会

      国家网络安全宣传周

      学习贯彻党的二十大精神

      国际博物馆日

    • 八五普法

      文博影像

      世界标准日

      国家安全教育日

      山西省第四次全国文物普查

    • 涉企行政检查

      文物保护法

      其他

      文化和自然遗产日

  • 互动交流
    • 网上留言 领导信箱 监督投诉 文物举报 业务咨询 信访业务

      政府信息公开意见箱

  • 文物资源
    • 文物类别 世界文化遗产 不可移动文物 可移动文物 博物馆/纪念馆 名城名镇名村

    首页 > 政务公开 > 政府信息公开 > 主动公开基本目录 > 主题分类 > 通知公告

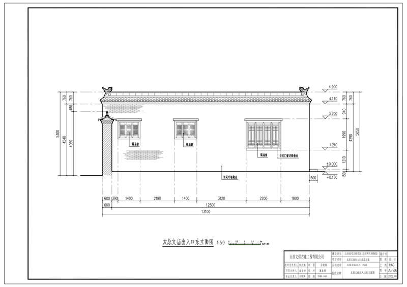
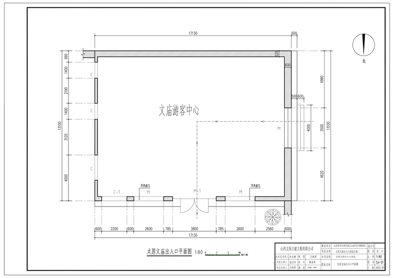
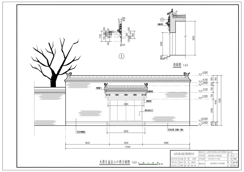
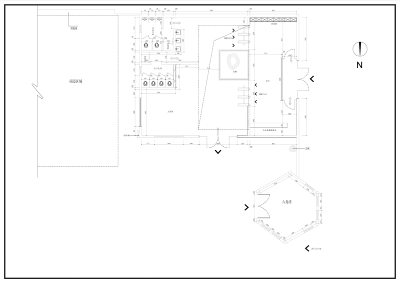
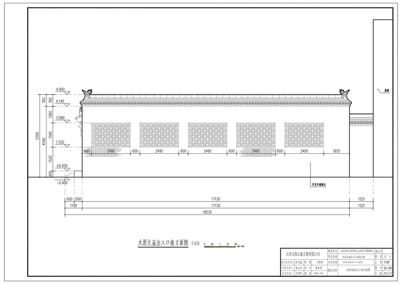
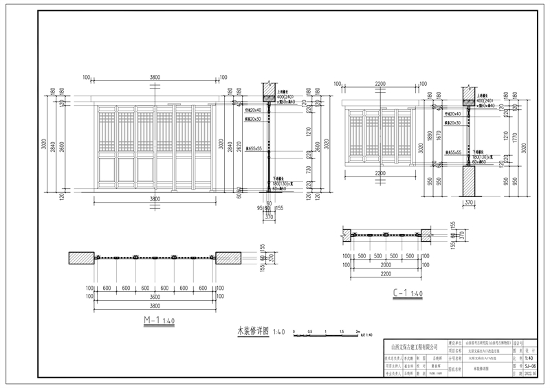
太原文庙出入口改造方案

  • 时间: 2022-05-29 来源: 作者:
  • 打印 字体: 放大 正常 缩小


上一篇 : 山西省文物局关于转发国家文物局进一步做好当前文物博物馆单位疫情防控工作的通知

下一篇 : 山西省文物局等5部门关于印发文物全科人才免费定向培养实施办法的通知

工作动态

  • 国家局信息
  • 时政要闻
  • 省内要闻
  • 省直动态
  • 市县信息

党建工作

  • 组织概况
  • 党建信息
  • 理论学习
  • 党风廉政
  • 创先争优

政务公开

  • 组织机构
  • 政府信息公开
  • 政策法规
  • 通知公告
  • 中央经济工作会议精神和《山西省政府工作报告》落实情况

行政审批

  • 办事流程
  • 审批公告

文明守望

  • 动态信息
  • 通知公告
  • 视频展播

专题专栏

  • 晋地宝藏
  • 线上展览
  • 文化遗产展示工程
  • 行政执法
  • 山西文物保护成果展

互动交流

  • 网上留言
  • 政府信息公开意见箱
  • 会员注册
  • 会员登录
  • 添加留言

文物资源

  • 世界文化遗产
  • 不可移动文物
  • 可移动文物
  • 博物馆/纪念馆
  • 名城名镇名村
  • 全国文博网站
  • 本省省级机关网站
  • 本省文博网站
  • 网站地图
  • 国家文物局
  • 中国国家博物馆
  • 故宫博物院
  • 省发展和改革委员会
  • 省教育厅
  • 省科学技术厅
  • 省工业和信息化厅
  • 省公安厅
  • 省民政厅
  • 省司法厅
  • 省财政厅
  • 省人力资源和社会保障厅
  • 省自然资源厅
  • 省文化和旅游厅
  • 省应急管理厅
  • 省信访局
  • 省地方金融监督管理局
  • 省扶贫开发办公室
  • 省医疗保障局
  • 省粮食和物资储备局
  • 省小企业发展促进局
  • 省监狱管理局
  • 省林业和草原局
  • 省药品监督管理局
  • 省生态环境厅
  • 省住房和城乡建设厅
  • 省交通运输厅
  • 省水利厅
  • 省农业农村厅
  • 省商务厅
  • 省卫生健康委员会
  • 省退役军人事务厅
  • 省审计厅
  • 省外事办公室
  • 省国有资产监督管理委员会
  • 省市场监督管理局
  • 省广播电视局
  • 省体育局
  • 省统计局
  • 省行政审批服务管理局
  • 省能源局
  • 省文物局
  • 省人民防空办公室
  • 山西博物院
  • 八路军太行纪念馆
  • 大同市博物馆
  • 运城博物馆
  • 临汾市博物馆
  • 晋祠博物馆
  • 云冈石窟
  • 晋国博物馆
  • 主办单位:山西省文物局  网站邮箱:sxwwwz@163.com  联系电话:0351-3802370  
  • 办公地址:山西省太原市小店区学府街41号  技术支持:山西云时代技术有限公司
  • 晋ICP备12000773号 晋公网安备 14010602060460号 网站标识码:1400000049
  • 山西省文物局网站提示:使用大于1366*768分辨率/IE10.0或以上浏览器可以获得最佳浏览效果!